Harmonic Trend [L]
Daroos Introverted House
previous project
next project
Residential
Competition (First Place Winner)
2011
Tehran, Iran
2,500 m2
Architect in Charge:
Ali Hamidi Moghadam
Team:
Siamak Khaksar, Hesam Mohsenpour, Hanieh Morvarid Foroush, Ehsan Naderi, Hosein Ghafari
Client:
Private Sector
HOW TO CONNECT HUMAN AND NATURE IN AN INTROVERTED HOUSE SO THAT WE CAN CREATE ANOTHER TYPE OF INTROVERTED ARCHITECTURE IN LINKAGE TO THE CITY?
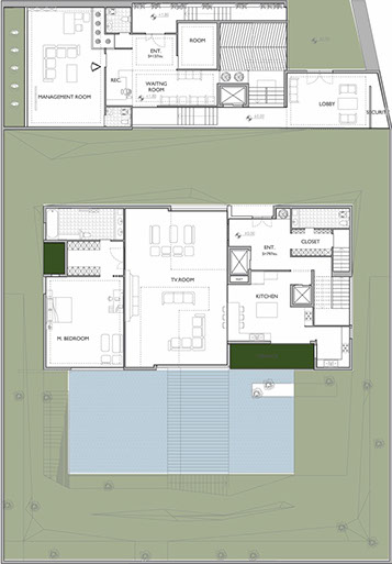
The client asked a house with no connection to its outside and definitely no external attraction and on the contrary, with diverse internal spaces for the residents.
At first we analyzed the extra dense program. In this stage we organized the harmonic trend for privatization of spaces. The focal point of this trend was finding the building’s location in the site and demonstrating various interaction between human and nature which led to creation of voids, terraces and yards inside the building that relates the cubic building from all of its 6 faces to the nature. That is how we brought the garden inside.
The best specification of the building was crystallized by the wall not just as an enclosure but as an organizer that creates a garden in combination with the water and green spaces.
On the other hand, we considered an aqua recreation area that makes a pleasant memorable space that is always fresh yet is out of sight.
A PIECE OF LAND IN THE CITY
SOROUNDING AS THE FIRST STEP TO CREATE A GARDEN
ADDING WALL, GREEN SPACE AND WATER TO CONVERT TO A GARDEN
WALL, NOT JUST A SURROUNDER BUT AS A DIVIDER HOLDS THE ENTRANCE BUILDING
CREATING THE MAIN BUILDING AS THE SETTLEMENT
CONFORMITY TO THE MUNICIPALITY RULES
SPACING FROM THE NEIGHBOURS
SPACING THE ENTRANCE BUILDING FROM THE NEIGHBOURS TO MAKE THE CONTINUITY OF THE VIEW
TWIST TECHNIQUE TO CREATE VARIOUS SPACE QUIALITY AND EXTENDING THE EXISTING LANDSCAPE
CREATION OF VARIOUS COMPLEMENTARY SPACES
CREATING THE AQUA RECREATION SPACE APART FROM THE OUTSIDE SUPERVISION
EMPTY SPACE
CREATING VOID, TERRACE AND YARD TO BRING THE GARDEN INSIDE
PRIVATIZATION HARMONIC TREND
Human Interaction with nature
INTROVERSION TYPE 1 + INTROVERSION TYPE 2 + INTROVERSION TYPE 3 = COMBINATION OF 3 TYPES